Conversion of a spa into a city library, Chomutov
The former spa building holds significant historical and cultural importance for the city of Chomutov and the entire region. To transform it into a space that will have a broader impact on public life, we approach its renovation with the highest ambition.
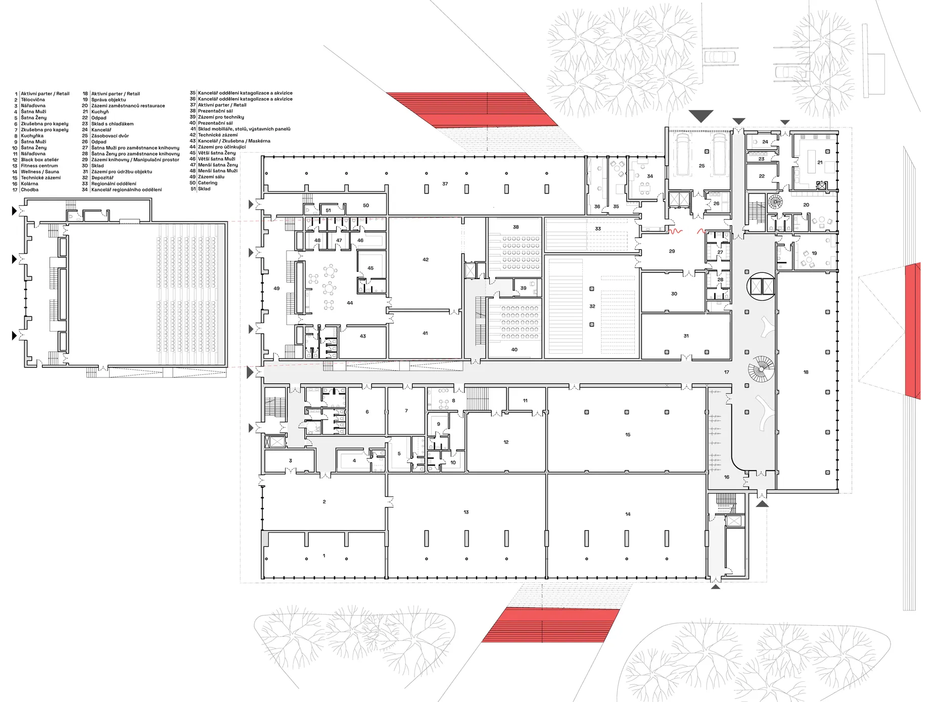
Our proposal for converting it into a modern 21st-century library includes a clear navigation system, which is reflected in the spatial design as well as the way it communicates with the public. The original spa building will thus be transformed into a community center, offering various functions such as a city library, a restaurant, multifunctional halls, study rooms, sports facilities, retail spaces, and other public areas.
| year: | 2023 |
|---|---|
| type: | public / culture |
| status: | ČKA competition (special jury award) |
| team: | Ing. arch. David Hladík, Bc. Radim Baláž, Bc. René Provazník, Bc. Patrik Špalovský, Bc. Tomáš Chrástecký, Ing. arch. Martin Kos, Bc. Zuzana Kropíková, Martin Horešovský, Ing. arch. Vít Hryzák |