Konverze lázní na městskou knihovnu, Chomutov


Objekt bývalých lázní má pro město Chomutov i celý region velký historický a kulturní význam. Abychom z něj vytvořili prostor, který bude mít širší dopad na veřejný život, přistupujeme k jeho transformaci s maximální ambicí.
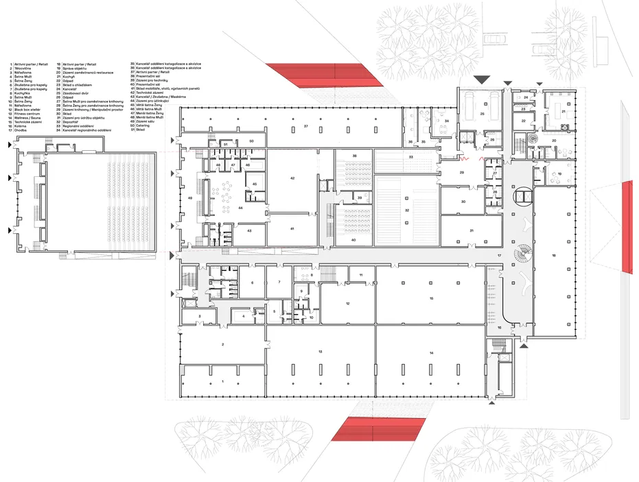
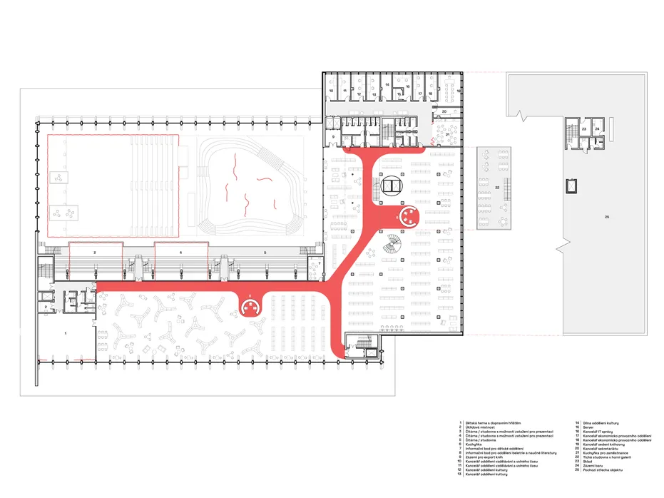
Náš návrh konverze na moderní knihovnu 21. století zahrnuje jasný navigační systém, který se promítá do prostorového řešení i do způsobu komunikace s veřejností. Původní lázně se tak transformují na komunitní centrum, které nabídne různé funkce, jako jsou městská knihovna, restaurace, multifunkční sály, studovny, sportoviště, retail a další prostory pro veřejnost.
rok: | 2023 |
---|---|
typ: | veřejný / kultura |
status: | soutěž ČKA (speciální cena poroty) |
investor: | město Chomutov |
team: | Ing. arch. David Hladík, Bc. Radim Baláž, Bc. René Provazník, Bc. Patrik Špalovský, Bc. Tomáš Chrástecký, Ing. arch. Martin Kos, Bc. Zuzana Kropíková, Martin Horešovský, Ing. arch. Vít Hryzák |



















